Design Your Dream Home with Experts.

Get Vastu-Compliant 2D Plans, 3D Designs & Modern Elevations within 48 Hours.
Build smarter with expert planning & accurate design solutions.

Start Your Project for Free - Explore Verified Properties

Our Projects

Handpicked construction plans and architectural masterpieces designed for modern living.

Design Specification 2D Plans
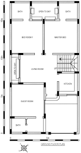
Elegant Ground Floor Plan

Elegant Ground Floor Plan

A beautifully arranged layout combining modern aesthetics with practical living spaces.

Mar 2026 Verified Plan
View Project PDF
Design Specification 2D Plans
Modern Ground Floor Layout

Modern Ground Floor Layout

A spacious and well-planned ground floor with seamless living, dining, and functional spaces.

Mar 2026 Verified Plan
View Project PDF
Design Specification 2D Plans
Modern Ground Floor

Modern Ground Floor

Stylish entry-level space designed for comfort and easy access.

Mar 2026 Verified Plan
View Project PDF
Design Specification 2D Plans
Modern First Floor

Modern First Floor

Smartly planned level for living, work, and relaxation.

Mar 2026 Verified Plan
View Project PDF
Design Specification 2D Plans
Modern House

Modern House

Bright and airy space with advanced urban comfort.

Mar 2026 Verified Plan
View Project PDF
Design Specification 2D Plans
Ground Floor

Ground Floor

The ground floor is the lowest level of a building, directly accessible from the street and living, or commerc...

Mar 2026 Verified Plan
View Project PDF
Design Specification 2D Plans
Modern Farm House Plans

Modern Farm House Plans

This is a modern farm house plan with 3 bedrooms, kitchen, hall and garden area.

Mar 2026 Verified Plan
View Project PDF
Design Specification 2D Plans
2D Contour Mapping

2D Contour Mapping

Shows a flat, two-dimensional view of an area.

Feb 2026 Verified Plan
View Project PDF
Design Specification 2D Plans
Your Future Home in 2D

Your Future Home in 2D

Layout & Functionality: Shows arrangement of rooms like living room, bedrooms, kitchen.

Feb 2026 Verified Plan
View Project PDF
Design Specification 2D Plans
Mapping My World in 2D

Mapping My World in 2D

A 2D map is a two-dimensional representation of a geographical area displayed on a flat surface.

Feb 2026 Verified Plan
View Project PDF
Design Specification 2D Plans
2D Architectural Blueprint

2D Architectural Blueprint

Serves as a comprehensive guide for planning, designing, and executing construction activities.

Feb 2026 Verified Plan
View Project PDF
Design Specification 2D Plans
Mapping Our World: A 2D Plan

Mapping Our World: A 2D Plan

Serves as a guide for planning and construction, providing clear direction for design decisions.

Feb 2026 Verified Plan
View Project PDF
Design Specification 2D Plans
Contours and Coordinate in 2D

Contours and Coordinate in 2D

Serves as a guide for planning and construction.

Feb 2026 Verified Plan
View Project PDF
Design Specification 2D Plans
Contemporary Floor Plan in 2D

Contemporary Floor Plan in 2D

A 2D plan showing room sizes, walls, doors, and furniture for clear visualization and efficient space.

Feb 2026 Verified Plan
View Project PDF
Design Specification 2D Plans
Modern 2D Floor Plan Design

Modern 2D Floor Plan Design

Shows precise placement of doors, windows, and furniture for practical layout.

Feb 2026 Verified Plan
View Project PDF
Design Specification 2D Plans
2D Structural Design

2D Structural Design

A simple 2D map showing key locations, roads, and landmarks clearly and accurately.

Feb 2026 Verified Plan
View Project PDF
Design Specification 2D Plans
Modern 2D Floor Plan Design

Modern 2D Floor Plan Design

Modern 2D Floor Plan Design shows a clear top-view layout with accurate room sizes, wall.

Feb 2026 Verified Plan
View Project PDF
Design Specification 2D Plans
2D Map

2D Map

2D Design presents a structured floor plan with accurate measurements and space planning.

Feb 2026 Verified Plan
View Project PDF
Design Specification 2D Plans
2D Residential Building Map

2D Residential Building Map

2D Design presents a structured floor plan with accurate measurements and space planning.

Feb 2026 Verified Plan
View Project PDF
Design Specification Architecture Drawings
Residential Building Map

Residential Building Map

A clean and functional 3D house map designed for modern residential living.

Feb 2026 Verified Plan
View Project PDF
Design Specification 2D Plans
Modern Residential House Map

Modern Residential House Map

A clean and functional 2D house map designed for modern residential living 1250sqrt.

Feb 2026 Verified Plan
View Project PDF
Design Specification 2D Plans
Modern Farm House Plan

Modern Farm House Plan

This Modern Farm House Plan is a designed 2D layout suitable for peaceful countryside living.

Feb 2026 Verified Plan
View Project PDF

Our 3D Designs & Site Updates

Watch our latest architectural tours and interior walkthroughs.

2D Design 2026
Modern Row House Design

Modern Row House Design

A modern row house design featuring a sleek elevation, efficient layout, and comfortable living spac...

2D Design 2026
200 Sq.Ft. Modern Farm House

200 Sq.Ft. Modern Farm House

A stylish 200 sq.ft. modern farmhouse designed for compact, comfortable living with smart space util...

2D Design 2026
Modern 2BHK Compact House Design

Modern 2BHK Compact House Design

A smartly designed 2BHK compact home with efficient space planning and comfortable living for small...

2D Design 2026
Luxury Residential Elevation

Luxury Residential Elevation

This luxury residential elevation is crafted to deliver a premium look with contemporary architectur...

3D Design 2026
3D Design Construction

3D Design Construction

A realistic 3D home design walkthrough featuring modern architecture, smart space planning.

Explore Properties by Category

Properties / Houses & Apartments AVAILABLE
Property Photo Property Photo Property Photo Property Photo Property Photo Property Photo Property Photo Property Photo Property Photo Property Photo Property Photo Property Photo Property Photo Property Photo Property Photo
₹5,500,000
2 BHK - 2 Bathroom - 1000 sqft
Bhawan Nirman
Lucknow, Uttar Pradesh 3 months ago
View Details
Properties / Houses & Apartments AVAILABLE
Property Photo Property Photo Property Photo Property Photo Property Photo Property Photo Property Photo Property Photo Property Photo Property Photo Property Photo Property Photo Property Photo Property Photo Property Photo Property Photo Property Photo Property Photo Property Photo Property Photo
₹4,500,000
2 BHK - 2 Bathroom - 750 sqft
Bhawan Nirman
Lucknow, Uttar Pradesh 3 months ago
View Details
Properties / Houses & Apartments AVAILABLE
Property Photo Property Photo Property Photo Property Photo Property Photo Property Photo Property Photo Property Photo Property Photo Property Photo Property Photo Property Photo Property Photo Property Photo Property Photo Property Photo Property Photo Property Photo Property Photo Property Photo
₹3,500,000
1 BHK - 1 Bathroom - 500 sqft
Bhawan Nirman
Lucknow, Uttar Pradesh 3 months ago
View Details
Properties / Houses & Apartments AVAILABLE
Property Photo
₹450,000
1 BHK - 2 Bathroom - 800 sqft
Bhawan Nirman
Lucknow, Uttar Pradesh 3 months ago
View Details
Properties / Houses & Apartments AVAILABLE
Property Photo Property Photo Property Photo Property Photo Property Photo Property Photo Property Photo Property Photo Property Photo Property Photo Property Photo
₹20,000,000
1 BHK - 3 Bathroom - 1600 sqft
Bhawan Nirman
Lucknow, Uttar Pradesh 3 months ago
View Details
Properties / Houses & Apartments (Rent) AVAILABLE
Property Photo Property Photo Property Photo Property Photo Property Photo Property Photo Property Photo Property Photo Property Photo Property Photo
₹17,000
2 BHK - 2 Bathroom - 1600.00 sqft
Bhawan Nirman
Lucknow, Uttar Pradesh 3 months ago
View Details
Properties / Shops & Offices (Rent) AVAILABLE
Property Photo Property Photo Property Photo Property Photo Property Photo Property Photo Property Photo Property Photo Property Photo Property Photo Property Photo
₹27,000
BHK - Bathroom - 1600.00 sqft
Bhawan Nirman
Lucknow, Uttar Pradesh 3 months ago
View Details
Properties / Houses & Apartments AVAILABLE
Property
₹10,000
3 BHK - 2 Bathroom - 1200 sqft
Bhawan Nirman
gkp, Uttar Pradesh 3 months ago
View Details
Properties / PG & Guest Houses AVAILABLE
Property Photo Property Photo Property Photo Property Photo
₹4,750
PG • Furnished
Bhawan Nirman
Lucknow, Uttar Pradesh 4 months ago
View Details
Properties / PG & Guest Houses AVAILABLE
Property Photo Property Photo Property Photo Property Photo Property Photo Property Photo Property Photo Property Photo Property Photo Property Photo
₹4,500
PG • Furnished
Bhawan Nirman
Lucknow, Uttar Pradesh 4 months ago
View Details
Properties / PG & Guest Houses AVAILABLE
Property Photo Property Photo Property Photo Property Photo Property Photo Property Photo Property Photo Property Photo Property Photo Property Photo Property Photo Property Photo Property Photo Property Photo Property Photo
₹4,500
PG • Furnished
Bhawan Nirman
Lucknow, Uttar Pradesh 4 months ago
View Details
Properties / PG & Guest Houses AVAILABLE
Property Photo Property Photo Property Photo Property Photo Property Photo Property Photo Property Photo Property Photo Property Photo Property Photo Property Photo Property Photo Property Photo
₹5,500
PG • Furnished
Bhawan Nirman
Lucknow, Uttar Pradesh 4 months ago
View Details
Properties / PG & Guest Houses AVAILABLE
Property Photo Property Photo Property Photo Property Photo Property Photo Property Photo Property Photo Property Photo Property Photo Property Photo Property Photo Property Photo Property Photo Property Photo
₹3,500
PG • Furnished
Bhawan Nirman
Lucknow, Uttar Pradesh 4 months ago
View Details
Properties / PG & Guest Houses AVAILABLE
Property Photo Property Photo Property Photo Property Photo Property Photo
₹8,000
PG • Furnished
Bhawan Nirman
Lucknow, Uttar Pradesh 4 months ago
View Details
Properties / Lands & Plots AVAILABLE
Property Photo Property Photo Property Photo Property Photo Property Photo Property Photo Property Photo
₹6,000,000
Plot Area: 2400.00 sqft
Bhawan Nirman
Lucknow, Uttar Pradesh 4 months ago
View Details
Properties / Lands & Plots AVAILABLE
Property Photo Property Photo Property Photo Property Photo Property Photo
₹2,000,000
Plot Area: 1400.00 sqft
Bhawan Nirman
Lucknow, Uttar Pradesh 4 months ago
View Details
Properties / Lands & Plots AVAILABLE
Property Photo Property Photo Property Photo
₹1,500,000
Plot Area: 1800.00 sqft
Bhawan Nirman
Lucknow, Uttar Pradesh 4 months ago
View Details
Properties / Lands & Plots AVAILABLE
Property Photo Property Photo Property Photo Property Photo Property Photo Property Photo Property Photo
₹2,800,000
Plot Area: 108000.00 sqft
Bhawan Nirman
Lucknow, Uttar Pradesh 4 months ago
View Details
Properties / Lands & Plots AVAILABLE
Property Photo Property Photo Property Photo Property Photo
₹2,800,000
Plot Area: 108900.00 sqft
Bhawan Nirman
Lucknow, Uttar Pradesh 4 months ago
View Details
Properties / Lands & Plots AVAILABLE
Property Photo Property Photo Property Photo Property Photo
₹5,500
Plot Area: 1000.00 sqft
Bhawan Nirman
Lucknow, Uttar Pradesh 4 months ago
View Details

Our Services

Home Budget & Design Estimator

2D/3D Plans

House Construction

Vastu Consultation

Interior Design

House Rent / Sell

Our Masterpieces

From Vision to Reality

Lucknow Project
Gomti Nagar, Lucknow
Modern Heritage Fusion

The Nawab's Modern Villa

Client Requirement:

Lucknow ki garmi se bachav, traditional 'Aangan' touch, aur modern 3D elevation jo area mein sabse alag dikhe.

Final Result:

Humne "Heat-Resistant Jali Facade" aur Double-height lobby design ki, jisse ghar 5°C thanda rehta hai aur look bilkul International hai.

View Case Study
Commercial Project
Corporate Hub
Commercial 2D/3D Planning

Elite Business Plaza

Client Requirement:

Maximum shop area extraction aur fast construction timeline taaki rental income jaldi shuru ho sake.

Final Result:

AI-driven 2D layout se 15% extra space nikali aur 45 din pehle project handover kiya. Zero space wastage guarantee!

View Case Study
Vastu Villa
Residential Sector
Vastu-Compliant 3D Design

The Harmony House

Client Requirement:

100% Vastu compliance lekin modern 'Glass-Finish' look ke saath. Budget optimization bhi zaruri tha.

Final Result:

Scientific Vastu planning ke saath humne smart materials suggest kiye jisse client ka ₹4 Lakhs construction cost bach gaya.

View Case Study

About Bhawan Nirman

Building foundations, crafting futures. We bring your vision to life with expertise in architectural planning, Vastu consultation, and comprehensive real estate solutions.

Our 2D/3D Plans, House Construction,Vastu Consultation, House Rent / Sell combined with traditional architectural wisdom create spaces that are both modern and harmonious, ensuring every project exceeds expectations.

500+ Projects
100% Vastu Compliant
15+ Years Experience
Bhawan Nirman Logo
Quality Assured
On-Time Delivery
Licensed & Certified
The Benchmark of Trust

Voices of Architectural Excellence

Client Story
Gomti Nagar, Lucknow

"A Masterpiece in Every Detail"

They transformed our narrow plot into a sunlight-filled sanctuary. Their Vastu integration is truly scientific.

Mr. Rajesh Khanna • Business Tycoon
Client Story
Noida, NCR

"Express Delivery, Zero Compromise"

The AI-driven 3D walkthrough was so realistic, it felt like our home was already built. Highly professional team.

The Verma Family • Corporate Leaders
Client Story
Aliganj, Lucknow

"Unmatched Technical Precision"

As a surgeon, I value precision. Their structural planning and material guidance saved us millions.

Dr. Sameer Rizvi • Senior Surgeon
Google Verified 4.9 Rating
"Exceptional Innovation" • "Best Architects in Lucknow" • "Uncompromising Integrity" • "Future-Ready Designs" • "Transparent Pricing" • "Exceptional Innovation" • "Best Architects in Lucknow" • "Uncompromising Integrity" • "Future-Ready Designs" • "Transparent Pricing" •
ISO 9001 CERTIFIED
LDA AUTHORIZED
COA REGISTERED
ULTRATECH ELITE
VASTU COUNCIL

Real Projects. Real Results.

Over 500+ homeowners have trusted us to bring their architectural vision to life

Verified
Residential Villa

Modern Luxury Villa

Gomti Nagar Extension, Lucknow

"They transformed our narrow plot into a sunlight-filled sanctuary. The 3D walkthrough delivered in 72 hours helped us visualize everything. Saved us ₹8.5 lakhs without compromising design quality."

Rajesh Khanna
Rajesh Khanna
Business Tycoon
Verified
Commercial Plaza

Retail Plaza Complex

Sector 110, Noida NCR

"The AI-driven 3D walkthrough was so realistic, it felt like our home was already built. Most professional firm we've worked with. Increased rental yield by 23%. Delivered ahead of schedule!"

Verma Family
The Verma Family
Corporate Leaders
Verified
Contemporary Duplex

Modern Duplex Home

Aliganj, Lucknow

"As a surgeon, I value precision. Their technical planning saved us millions in potential issues. Scientific Vastu principles without sacrificing modern aesthetics. Exceeded all expectations."

Dr. Sameer Rizvi
Dr. Sameer Rizvi
Senior Surgeon

House Construction

Click below to go to the Construction form!

Icon Open Form
+Post Property

Why Choose Us

Smart Cost Efficiency

Through strategic sourcing, precise planning, and strict wastage control, we help clients reduce overall construction costs by up to 20% without compromising on material quality or workmanship.

Maximum Value, Optimized Budget

Assured Timely Delivery

Our advanced project planning and execution methodology ensures faster construction cycles with well-defined milestones, enabling on-time or early project completion.

Planned Execution, Zero Delays

Vastu-Compliant Design Excellence

We integrate scientific Vastu principles into architectural planning, delivering 100% Vastu-aligned homes that promote harmony, positivity, and long-term well-being.

Balanced Spaces, Positive Living

Why Bhawan Nirman?

100% Verified
Ads

AI-Powered
Precision

Expert
Support

ISO Certified
Process

⭐ Rate Us on Google

How was your experience with us?
Share your feedback on Google!

✍ Review Now →